شقة 164م بالنرجس الجديدة بالتجمع الخامس

4,650,000ج

المكونات

  • 3 ريسيبشن
  • 3 نوم
  • 3 حمام
  • 164
  • 1 جراج

Property Id: 20918
السعر: 4,650,000ج
مساحة العقار: 164
ريسيبشن: 3
نوم: 3
حمام: 3
حالة العقار: إستلام فوري
رقم الدور: رابع
متاحة من: 2023-06-01
نوع التشطيب: نص تشطيب
تاريخ التسليم: 2026-01-01
عدد أدوار المبنى: 3
النمط الخارجي: مودرن
جراج مغطى: 1

العنوان: منطقة G - النرجس الجديدة
المحافظة :
الدولة: Egypt

شقة بالنرجس الجديدة
مساحة: 1
ريسيبشن: 3
حمام: 3
السعر:
الدور الرابع

الوصف

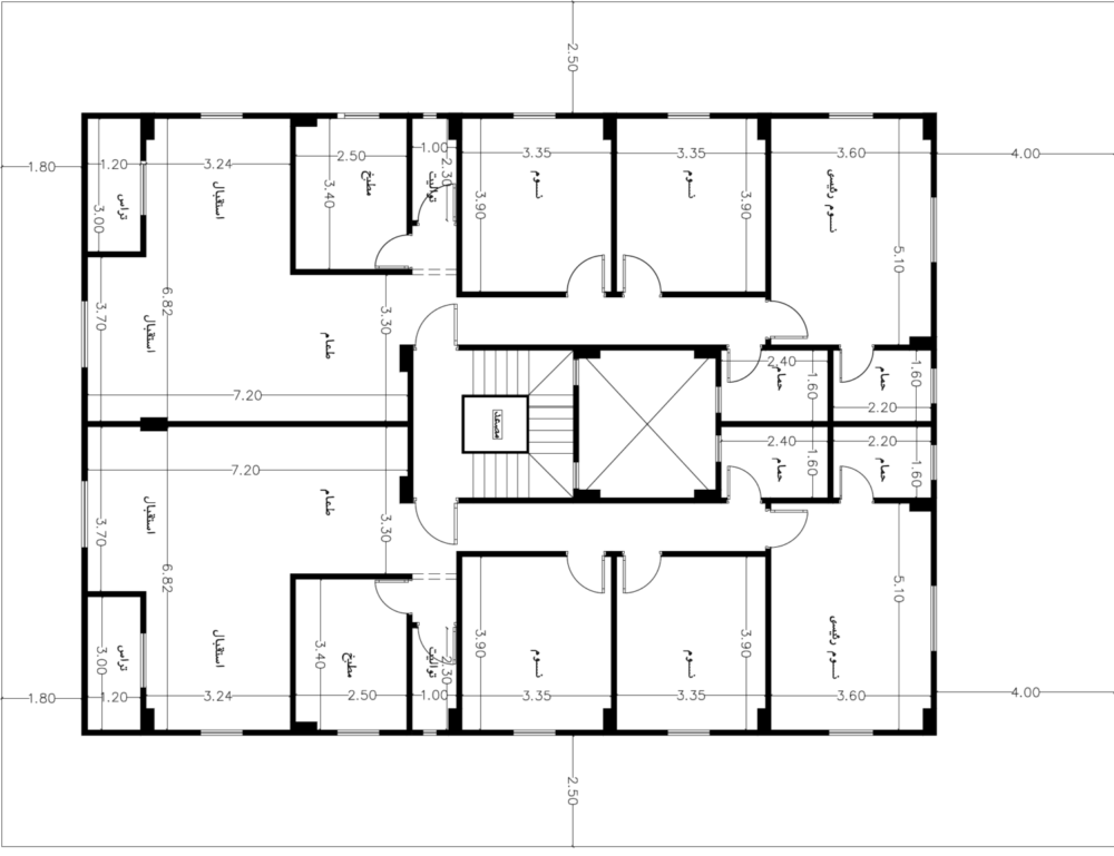
 تتكون شقة 164م بالنرجس الجديدة بالتجمع الخامس من 3 غرف نوم  منهم غرفة مستر بحمام . مطبخ كبير. عدد 3 حمام. 3 ريسيبشن. تراس امامي على الواجهة الخارجية.

 

شقة للبيع في التجمع الخامس

وتقع شقة 164م بالنرجس الجديدة بالتجمع الخامس مباشرة امام كبموند الدوبلماسيين. كما انها تقع بالقرب من كمبوند القطامية ديونز والجامعة الامريكية. حيث تتميز منطقة النرجس الجديدة بموقعها وسط مدينة القاهرة الجديدة وقربها من الط

شقة للبيع في التجمع الخامس 164م بالنرجس الجديدة

شقة للبيع في التجمع الخامس 164م بالنرجس الجديدة

ريق الدائري وشارع التسعين ومناطق الخدمات والبنوك وكايرو فيسيتفال سيتي وداون تاون. كل ذلك مما يعطي بريستيج خاص للمنطقة وتميز موقعها. كما ان المنطقة تحت الانشاء حاليا يتم الانتهاء من المرافق ويمكن السكن بها بمجرد استلام الوحدات بفترة 20 شهر تقريبا.

شقة-164م-للبيع-في-النرجس-الجديدة-منطقة-G

شقة-164م-للبيع-في-النرجس-الجديدة-منطقة-G

شقة 164م للبيع بالتجمع الخامس بالنرجس الجديدة

شقة للبيع بالتجمع بالنرجس الجديدة مساحة 164 م. حيث تقع الشقة في منطقة النرجس الجديدة. كما تعتبر النرجس الجديدة من الاحياء الجديدة والتي تقع في قلب التجمع الخامس. حيث طرحتها هيئة المجتمعات العمرانية مؤخرا في موقع متميزجدا وهو الغابة المتحجرة سابقا.

شقة للبيع بالتجمع الخامس

مواصفات التسليم للشقة هو نص تشطيب (محارة وحلوق) لداخل الشقة مع تاسيس الكهرباء والمياه والصرف. كما يمكن ان تقوم الشركة بالتشطيب وتسليمها على المفتاح. اما نظام السداد فهو بالتقسيط بدون فوائد على فترة 5 سنوات من المالك مباشرة.

شقة للبيع في التجمع الخامس في النرجس

منطقة النرجس الجديدة تقع على شارع طلعت حرب ومحور جمال عبدالناصر امام الجامعة الالمانية، وعلى بعد حوالي 3 كم من شارع التسعين الجنوبي بالتجمع الخامس.

شقق للبيع في التجمع الخامس من المالك

من شركة سيفيك ريزيدنس للتطوير العقاري. حيث تعتبر سيفيك ريزيدنس من الشركات الرائدة في مجال العقارات في القاهرة الجديدة . كما يمكنكم التقسيط بدون فوائد كما يمكن الاطلاع على عقارات اخرى وشقق للبيع في التجمع الخامس من الشركة. كذلك يتوفر بالشركة العديد من شقق للبيع بيت الوطن بالتجمع الخامس بانظمة سداد متنوعة ومساحات مختلفة تنتاسب الجميع.

اتصل بنا

قائمة المقارنة

سيفيك ريزيدنس للتطوير العقاري