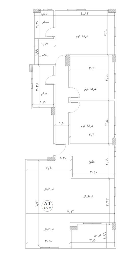
المكونات
- 3 ريسيبشن
- 3 نوم
- 3 حمام
- 170
- 1 جراج
Property Id: 19550
السعر: 5,100,000ج بالتقسيط
مساحة العقار: 170
مساحة للعقار الكلية: 170
ريسيبشن: 3
نوم: 3
حمام: 3
حالة العقار: تحت الإنشاء
رقم الدور: خامس
متاحة من: 2023-12-01
نوع التشطيب: نص تشطيب
تاريخ التسليم: 2028-01-01
عدد أدوار المبنى: 5
النمط الخارجي: كلاسيك
جراج مغطى: 1
العنوان: الثورة الخضراء
المدينة: الشيخ زايد
المنطقة : الثورة الخضراء, بيت الوطن - زايد
المحافظة : الجيزة
الدولة: Egypt
الوصف
شقة 170م بالشيخ زايد









